Nilai – Taman Desa Mayang Sari
  • PROJECT NAME Taman D'Mayang Sari
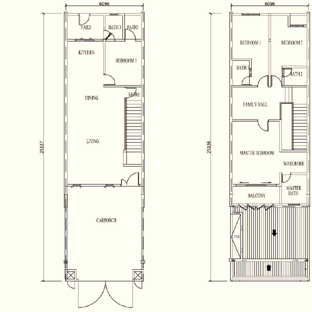
  • TYPE TERRACE
  • FLOOR 2 STOREY
  • LAND AREA 20'X70'
  • BUILT UP AREA 2,406 SQFT
  • BEDROOM & BATHROOM 4 BED | 4 BATH
  • LAND STATUS FREEHOLD
  • SELLING PRICE RM718,000
  • promo price RM650k+-

PROJECT STATUS: Available
ESTIMATED COMPLETION: Q3 2025
MAINTENANCE FEES: RM100+-per month
SALES PACKAGES:
Booking Fees RM2,000.00
Free SPA Legal Fees
Free Loan Agreement Legal Fees

Floor Plan
Prev Next